Blog
Transformar un hogar: proyecto de interiorismo emocional en el Mirador del Guadiana
Rediseñamos una casa en El Mirador del Guadiana, creando un hogar cálido, funcional y lleno de emociones con vistas únicas al río.

Cuando nos enfrentamos al reto de rediseñar una vivienda, siempre pensamos en cómo convertirla en un espacio que no solo sea funcional, sino que también cuente historias y despierte emociones. Este fue el caso de una espectacular casa de tres plantas en la exclusiva urbanización de El Mirador del Guadiana, en Ayamonte. Este proyecto de Interiorismo Emocional tenía un objetivo claro: aprovechar al máximo las increíbles vistas al río Guadiana y crear un hogar cálido y funcional que se adaptara a las necesidades de sus propietarios. ¿Quieres saber cómo lo conseguimos? ¡Te lo contamos!
El corazón de la casa: la cocina y el salón con vistas
No podíamos ignorar esas impresionantes vistas al Guadiana, así que decidimos integrar la cocina al salón. Este cambio no solo unificó los espacios, sino que también logró que cada rincón de la planta principal se conectara visualmente con el paisaje. Ahora, mientras cocinas, disfrutas de una panorámica espectacular que transforma las tareas diarias en momentos únicos.
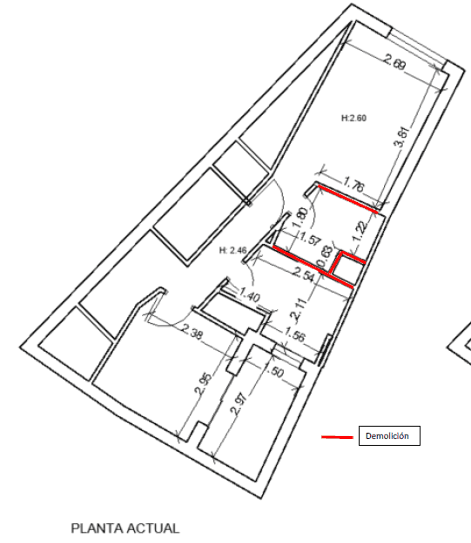
De dos a tres dormitorios: una redistribución inteligente
La planta de los dormitorios necesitaba algunos ajustes para aprovechar mejor el espacio. Aquí es donde nuestra creatividad entró en juego:
El baño de invitados, que era muy grande para ser un baño pero pequeño para una habitación, por lo que se amplió desplazando un tabique. Este cambio permitió ganar un dormitorio adicional sin sacrificar comodidad. Así, pasamos de tener dos a tres dormitorios en la vivienda.
El baño en suite también se rediseñó completamente. Abrimos el baño hacia el dormitorio, creando un espacio integrado y moderno, pero manteniendo el inodoro en un área independiente para mayor privacidad.
Nuevos espacios funcionales: baño y lavadero en el patio
A veces, los espacios exteriores pueden convertirse en auténticos aliados del diseño. En este caso, una zona de patio se transformó en un práctico baño adicional y un lavadero. Este cambio no solo añadió funcionalidad, sino que también optimizó al máximo el espacio disponible.
Un hogar que conecta con las emociones
Más allá de los cambios estructurales, este proyecto tenía una meta especial: que cada rincón de la casa invitara a sentirse en paz, inspirado y cómodo. Para eso, trabajamos en los detalles, los materiales y la distribución, cuidando que cada elemento tuviera sentido tanto funcional como estético.

Resultado final
El resultado final es una vivienda que ahora no solo es más amplia y funcional, sino que también transmite una sensación única de hogar. Cada detalle está pensado para mejorar la vida de sus propietarios, desde las maravillosas vistas hasta los rincones más íntimos.




¿Te gustaría transformar tu hogar en un espacio que realmente hable de ti? ¡En L’Interior, estaremos encantados de hacerlo realidad contigo! 😊